Arsenal

Construction de 24 logements sociaux dans l’ancien Arsenal de Pont-à-celles

Maître d’ouvrage Les Jardins de Wallonie
Lieu Pont-à-Celles, Hainaut, Belgique
Programme Réhabilitation d’un ancien hall industriel en 24 logements sociaux
Concours 2008
Projet 2008-2016
Surface 2 700 m2,
Montant des travaux 2 800 000 euros HTVA
Photographes Maxime Delvaux

Lors de la réalisation des 24 logements sociaux dans l’ancien hall industriel de l’arsenal de Pont-à-Celles, l’enjeu principal de la réflexion fut la dimension humaine. L’ensemble des thématiques abordées pour ce projet se concentrent toutes sur ce point de départ principal.

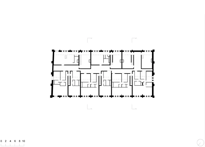
Au niveau des espaces communs, l’intention se traduit par la création d’un hall partagé décliné en gradin. Lieu de rassemblement informel des occupants, c’est aussi la colonne vertébrale du projet, axe central aménagé comme une rue qui permet d’accéder à chacun des logements. Cet espace permet par sa hauteur et sa générosité d’appréhender la totalité de l’ancien volume qu’occupait autrefois la chaudronnerie. Baigné de lumière naturelle révélant la structure d’origine de sa toiture, il propose un cheminement spontané à travers le bâtiment.

Le désir de dimension humaine se retrouve également dans une volonté de proposer des logements différenciés. Spatialement, cette intention se traduit par un jeu de décrochement des façades des espaces habités sur l’espace central. Subtilement réfléchie, cette disposition permet de créer, depuis chacun des appartements, des vues qualitatives sur la rue partagée tout en préservant l’intimité de chacun. La superposition de toutes ces boîtes en porte-à- faux et le percement irrégulier des façades contribuent eux aussi à l’identité du lieu.

On retrouve, encore une fois, cette préoccupation pour l’échelle humaine quand on emprunte un des nombreux escaliers particuliers distribuant trois ou quatre appartements. Parfois dissimulés, parfois posés en équilibre sur les gradins en béton, ces escaliers plus étroits, conduisent comme autant de petites venelles vers les appartements. Jalonnés de paliers, de renfoncements ou de balcons, ils offrent des espaces de « bonjours » fortuits entre les résidents.

Installés le long des deux longues façades existantes les espaces de vie privés bénéficient des larges ouvertures existantes. Tantôt en duplex tantôt en double volume, les séjours créés bénéficient de beaucoup de générosité ce qui permet de repousser vers le centre les espaces de nuit sans pour autant diminuer leur qualité.
Ces espaces de recul sont éclairés par des percements donnant sur la rue intérieure.

Télécharger le PDF du projet